"理想の家"づくりで失敗しない「図面の作り方」3ステップ「実物で徹底解説!」【連載】「セルフビルド冒険の書Vol.7」@千葉県長柄町
- 2023年04月02日公開
 
こんにちは、木こりの源です。
木こりでも大工でもなかった”レベル1のど素人”が、木を伐って、加工して、家を建てる!と無謀にやり始めたものだから、そりゃ大変!
師匠に怒られ、最初はボッチで、やっとできた仲間にはなじられ、失敗を積み重ね…。
5年かけてやっと完成するまでの、貴重なノウハウをここに記していきます。
⇨連載を最初から読むならこちら  
連載7回目は、この大冒険のマップとも言える、図面の作り方と見方を学んでいきましょう。
「図面」=マップ!最重要な情報が全部詰まったもの
建築基準を満たす家づくりにこだわる僕たちは、図面は建築士さんに作っていただいています。
ゲームにおける「マップ」とは、重要な情報が詰まったものです。
昔は自分で書いたり、ファミコン雑誌の『ファミマガ』か『ファミ通』または攻略本で手に入れたものです 。
家に置き換えても全くその通りで、建築するにあたって重要な情報が詰まったものが図面なのです!  
建築基準に合わせた図面作りは、プロにお任せ
この最重要の図面を建築基準に合わせて作るには、膨大な知識量と技術が必要なので、建築士さんにお任せするのが無難でしょう。
今回、僕の家を作るための図面は、僕の大工の師匠でもある、千葉県大網白里市のログテック二級建築士事務所の松本 透亮(まつもと ゆきふさ)さんに作っていただきました。
松本さんは例えるなら、オル○ガ。主人公のお父さんである戦士ですね!
あ、でもラスボス戦手前で、やられちゃうんだった…(泣)。
やっぱ、オ○テガは無し!
とにかく大変お世話になっている大師匠です。 
松本師匠

図面を作る3ステップをリアル解説!
では、改めまして、図面を作るステップはこちら!
①公図・測量図で土地の大きさや形を把握する
②建物の形と間取りを考えて下書きする
③建築士さんに正式な図面にしてもらう  
こんな流れで図面を作っていきます。 実際に家を作った時の現物と合わせて、具体的に見ていきましょう!
①公図・測量図で土地の大きさや形を把握する
土地売買の時に、公図と測量図をもらえるはずですが、無いようなら法務局で入手できます。 世界全体のマップを手に入れたような感じですね!
公図
公図(こうず)とは、法務局に備え付けられている法的な図面で、土地の位置や形を確定するための地図です。

測量図
測量図(そくりょうず)とは、隣接地の所有者の了解のもと境界を決め、それに基づいて測量した図面です。

隣地や道路との境界が確定していない場合は、隣地との境界確定や測量を独自で行わなければならないので、その費用が余計にかかることになります。
ちなみに我が**長柄町は、全域を順次、町の予算で境界確定しているので、これも家を建てる人にとっては嬉しい特典です。
②建物の形と間取りを考えて下書きする
公図と測量図で地形を把握したら、次はどんな形の家にするか決めます。
マップの中にどのように、城や町を配置するかといったところ。
ゲームをプレイする側から作る側に回った感じです!  
土地は限られていますので、有効利用した建物の形を考えます。
僕が最初に考えた家の形はこんな感じです。
最初に作ってみた下書き図面

配置した城や町の中身を作って行くのと同じ感じ。
道具屋、武器屋、宿屋、教会、民家等、どう配置するか悩みどころ!  
せっかく隣が田んぼの景色の抜けが良い土地を選んだのですから、その景色を活かすのと、長柄町の活動の拠点としてゲストハウス的に使う目的がありましたので、贅沢な間取りにしたいと考えました。
田んぼで景色の抜けがよい土地

というわけで、都会では絶対ありえない、LDK+ロフトという間取りにして、ジャグジーやサウナもつけたいという欲張りすぎなものにしてみました。
考えた間取りは、手書きでもパワポのようなソフトでも構わないので、建築士さんに伝わるようなものを紙に作りましょう。
③建築士さんに正式な図面にしてもらう
下書きの紙を建築士さんに渡し、正式な図面にしてもらいます。
建ぺい率や、容積率の関係で、自分の理想通りになるかわかりませんので、少し狭くなったり、形が変わる可能性もあることを承知しておかなければなりません。
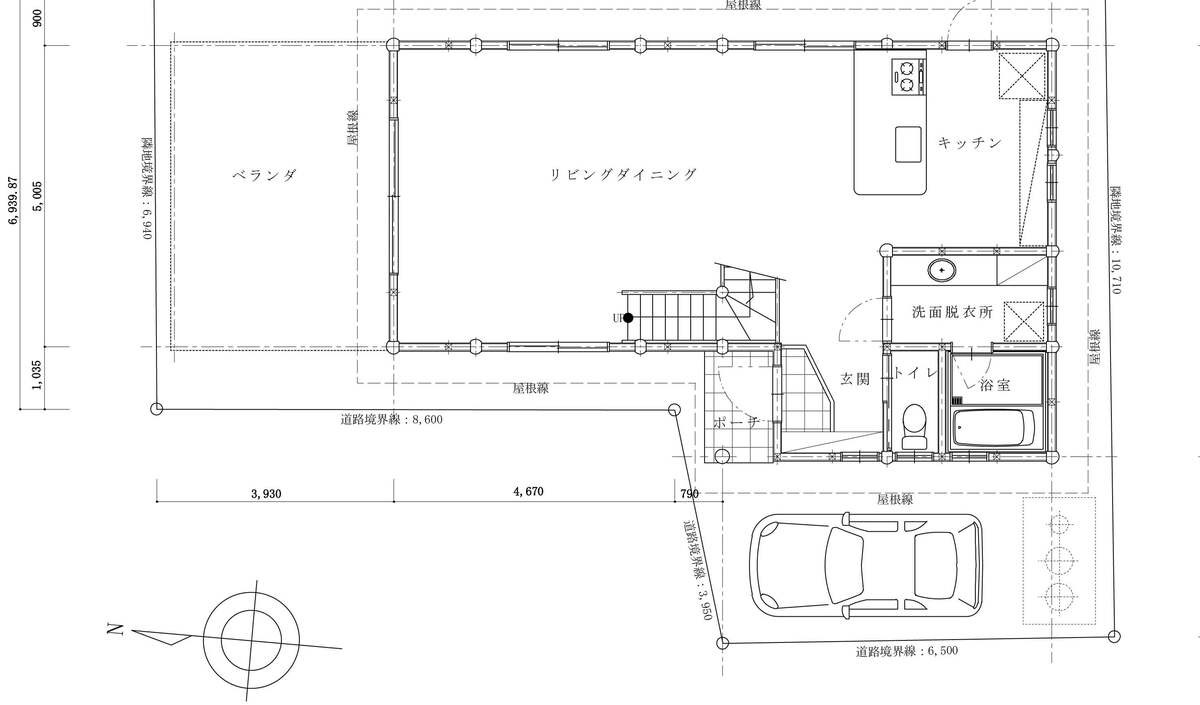
ここで何度か修正のやり取りをして、図面は完成します。  
結局落ち着いた図面がこちら(流石にサウナとジャグジーはギラつきすぎw)
.jpg)
この図面が、家づくりの大冒険のマップであり攻略本になるのです!
図面は1種類じゃない!実はたくさんあるんです
できあがってくる図面には、いろいろな種類があります。
外界や洞窟、塔、城など色々なマップがあるのと同じなんです。  
セルフビルドで最低使う図面は、配置図、平面図、立面図、通り断面図、土台伏せ図、基礎伏せ図の6種類です。
僕が家を建てた際の「実物」をお見せしますね!
平面図:部屋探しで1番良く見る「上から見た図面」

立面図:建物の外観を「横から見た図面」

通り断面図:通りに沿った「断面図」

土台伏せ図:土台部分を「上から見た断面図」

基礎伏せ図:基礎部分を「上から見た断面図」

図面の見方を簡単にご紹介!
平面図にある、縦のアルファベットと横の数字を、通りと呼びます。
この記号・番号を番付と呼び、番付で材の位置を見ていきます。
1通りとA通りの交差する所の柱は「1-A」、5通りとG通りの交差する所の柱は「5-G」といった具合です。
在来工法の家では、アルファベットが、いろはにほへと、になっています。
実は、「いの1番」と言う言葉の語源はここから来ています。

そして、全ての通りに対応した、通り断面図があります。
通り断面図は、家をCTスキャンしたものと思ってもらえればわかりやすいと思います。

例えば上の図は、「5通りの断面図」です。
これを元に、柱や梁などの材に墨(加工部分の下書き線)を付けたり、組み上げ時やその後の建築金具や筋交いの位置確認など、建築作業を進める為に使っていきます。  
さー!マップを手に入れたら、仲間にした丸太を順次レベルアップさせますよ!
というわけで、次回は「墨付け」です。  
▼建築設計していただいたのはこちら
ログテック二級建築設計事務所 松本 透亮(まつもと ゆきふさ) (千葉県知事登録第2-0408-6038号)
〒299-3255 千葉県大網白里市みどりが丘1-17-3 Tel:0475-72-5952 Fax:0475-72-5962
 
2017年より、NPO法人ふるさとネッツの理事となり、荒廃林を自ら整備して排出された杉材を使いログハウスをセルフビルド。 このノウハウを活かして、現在は東京と千葉を往復する2拠点生活を実践しながら、「セルフビルドサポーター」の資格制度を作り、多くの地方がめざす地域創生を「林業」から実現する日本初のモデルとなるべく邁進中。
こちらもどうぞ
人気記事ランキング
24時間PV集計
DIY
- 
![]() トイレ収納棚も100均のつっぱり棒DIYで満足度120%!2023/06/27 トイレ収納棚も100均のつっぱり棒DIYで満足度120%!2023/06/27
- 
![]() 【おゆまる】でハンドメイド!使い方&達人の名作10選!100均でも買える2023/09/29 【おゆまる】でハンドメイド!使い方&達人の名作10選!100均でも買える2023/09/29
- 
![]() ウソみたいに簡単!【100均グッズ】で即完成「お店風カフェメニューの作り方」~初級編~2022/07/23 ウソみたいに簡単!【100均グッズ】で即完成「お店風カフェメニューの作り方」~初級編~2022/07/23
- 
![]() ダイソー「リメイクシート」は最強!ブロック風や大理石風で簡単に高級感UP2023/06/27 ダイソー「リメイクシート」は最強!ブロック風や大理石風で簡単に高級感UP2023/06/27
- 
![]() 【すのこ棚をDIY】ALL100均でもおしゃれ!達人の実例25選2023/06/27 【すのこ棚をDIY】ALL100均でもおしゃれ!達人の実例25選2023/06/27
- 
![]() 軽くて設置簡単!DIYフェンスは山善アルミボーダーフェンスがおすすめ2023/06/27 軽くて設置簡単!DIYフェンスは山善アルミボーダーフェンスがおすすめ2023/06/27
- 
![]() ままごとキッチンの作り方!ダンボールをおしゃれにアレンジ2023/06/27 ままごとキッチンの作り方!ダンボールをおしゃれにアレンジ2023/06/27
- 
![]() 100均ワイヤーネットが無限に使える!棚から机まで活用アイデア13選2022/02/14 100均ワイヤーネットが無限に使える!棚から机まで活用アイデア13選2022/02/14
- 
![]() アウトドアテーブルをご紹介。リメイク法やDIYについて2023/06/27 アウトドアテーブルをご紹介。リメイク法やDIYについて2023/06/27
- 
![]() 無印で大人気「頑丈ボックス」は収納だけじゃない!超簡単アレンジで使い道無限2022/03/16 無印で大人気「頑丈ボックス」は収納だけじゃない!超簡単アレンジで使い道無限2022/03/16
特集記事
- 
2025年07月31日
- 
2025年04月18日
- 
2024年08月09日PR
- 
2024年05月02日
連載記事
- 
2019年08月21日
- 
2019年05月28日
 
 
 
 
 
 
 
 
 
 





